※満室御礼!
現在こちらの物件の募集は終了しております。

※2025/2/15 情報更新

「3号室」がご案内可能になりました。

写真は前回募集時のものです。

 

 

ガレージハウスをお探しの皆さんはガレージでどんな事をしたいですか?

愛車を眺めながら次のカスタムをぼんやりと考えたり、

次のツーリングの予定を考えたり、メンテナンスしたり、とやりたい事は人それぞれだとは思いますが

共通しているのが【愛車を安心して停めておく】ではないでしょうか?

 

そんな【愛車を安心して停められる】バイクガレージハウスが相模原に誕生しました。

それでは早速物件を見てみましょう〜

建物外観はレンガ調の外壁と3つのとんがり屋根が特徴的な可愛らしい外観。

外構の植栽などにもキラリとセンスが光ります。

シャッター前にも十分な広さがありますので洗車などもノビノビ出来そう♪

 

そして実はこちらの物件は道路に面して建築されているワケではありません。

道路沿いには別の建物があり、その側面に本物件へのアプローチ可能な小道があります。

道路から直接アプローチしにくいのは防犯にもなって良いですね〜

もちろんバイクなら乗ったまま建物前まで行けますよ。

3つ並んだシャッターを見ても分かる通りこちらの物件は3戸物件です。

電動シャッターを開けるとガレージ内部はこんな感じ〜

OSB合板の壁とグレーにペイントされた天井が特徴的なビルトインガレージです。

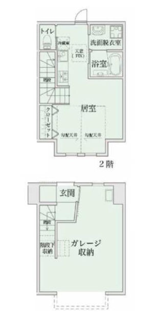
ガレージサイズは約11.7帖 シャッター間口は約2.4m

横幅は手前の広い所で約4.4m 中間部が約3.5m 奥の狭い所で約2.4m

奥行きは約5.4m 右手パイプスペースまでが約4.4m 中央の玄関ホールの壁まで約3.6m

高さは低い所で約2m 高い所で約2.5m

広々としたガレージ内にはバイクが複数台収納可能!

メンテスペースやくつろぎスペースだって十分に作れる広さ!!

天井部には埋込み型のダウンライトの他にライティングレールも完備!

お好きな照明器具でガレージを彩りましょう♪

その他にもガレージ内には玄関ホールに通じるガラス製スライドドアや開閉可能な窓、

お湯も出る水栓に大型シンク、換気扇、階段下収納スペース、

各所に家庭用電源などバイクガレージに嬉しい装備が盛り沢山♪

さらにはエアコンも設置可能なので付けたら、より快適なガレージライフが待っていますね。

さらにさらに、こちらの物件は1階のガレージのみ造作が可能!

DIYで棚を付けたりとアナタ好みにカスタマイズが出来ます!!

さて、ガレージを堪能したところで居住スペースも見てみましょう〜

 

玄関ドアはシャッターがある面の裏手にあります。

裏側に回るとこちらの外壁はマットな質感のブルーな外壁。

玄関ドアはスライドドアを採用!

中に入るとすぐ左手にガレージに通じるスライドドアがあります。

下駄箱収納はありませんのでお好きな物をお使い下さい。

右手には下駄箱を置くのにちょうど良いスペースが♪

玄関ホールにはSECOMのコントロールユニットが・・・

そう、こちらの物件は安心の【SECOMセキュリティ付き物件】なんです。

階段を登って2階へ行くとダイレクトにお部屋にアプローチ!

2階は約10.9帖の広さのお部屋です。

とんがり屋根の形状そのままの天井がカワイイですね〜

リビングの反対側にはキッチンがあります。

通路には天窓があり明るいキッチンです。

キッチンの前方には吹き抜けで階段と繋がっている珍しい作り♪

そしてこのクラスの物件だと珍しい3口コンロのガスコンロ!

これは自炊派にも嬉しい作りですね〜

キッチンの横の扉を開けるとトイレがあります。

ブルーのヘリンボーン床が爽やかなトイレです。

脱衣所の隣には爽やかなホワイトのバスルーム。

浴室暖房や乾燥機も付いたバスルームです。

今回お部屋の中の撮影は「3号室」でしたが、

真ん中の「2号室」はキッチンが主に違います。

ガスコンロはよりハイグレードな物になっていますよ♪

アクセントクロスやフローリング、建具のカラーも違いますが広さや間取りは同一です。

今ならお好みで選べます♪

さて、こちらの物件『相模原、バイクライフ!!』はいかがでしたか?

安心して愛車を停められる立地と設備!

バイクを複数台所有している方も安心の十分な広さのバイクガレージ!!

2階の居室はお洒落で天井が高く、大きな窓が無くても圧迫感は全くありません。

キッチンや洗面台、お風呂やトイレも中々のグレードの物を使っているし、

写真を撮った「3号室」と同仕様の「1号室」も真ん中の「2号室」

も落ち着いたカラーリングで居心地の良い物件でした。

 

場所は相模原市の中央区。

近くを通る国道16号から淵野辺交差点を曲がり神奈川県道・東京都道57号線を少し入った所にあります。

最寄り駅のJR横浜線「淵野辺」駅までは徒歩圏内ですが、

通勤で駅を利用するなら自転車や原付があったら、より便利に生活出来そう♪

休日にはこのガレージからバイクや自転車を出してどこに走りに行きましょうか?

 

物件撮影日2023/10/25

建物名:ハイダウェイ ガレージテラス
交通:

JR横浜線「淵野辺」駅  徒歩16分

所在地:神奈川県相模原市中央区淵野辺本町3丁目
使用部分面積:53.65㎡(壁芯)/ガレージ部分 19.42㎡ 
間取り:ワンルーム
賃貸保証:加入要 初期費用:賃料等総額50%
保険等:要
契約期間:2年
更新料:新賃料1ヶ月
取引形態:媒介
備考:

■保険付き24時間トラブルサポート 1,980円/月

■24時間セキュリティー

■DIY可(1階ガレージ部分のみ)

■喫煙不可 ■楽器不可 ■ペット不可

こだわり条件

事務所可

相模原、バイクライフ!!について問い合わせる
1
お問い合わせ
2
お問い合わせ内容を確認
お問い合わせ内容 *
お名前 *
お名前をフルネームで入力してください
メールアドレス *
メールアドレスを入力してください
電話番号
電話番号を入力してください
質問内容
その他を選んだ方、質問事項などある方は内容を記入してください

お名前:

メールアドレス:

電話番号:

お問い合わせ内容:

質問内容: